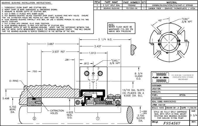
This patented design is a proven problem solving solution which addresses two common problems, of radial shaft movement and the need to reduce excessive water flush consumption commonly found in process plants around the world. This design requires no modification to the existing rotating equipment.
The “ORM” bearing/ bushing was developed to provide additional bearing support to centralize and stabilize the rotating shaft in the stuffing box/seal chamber. In addition to this it can significantly reduce the amount of water or flush media going into the sealed product. To achieve this goal a special compression molded proprietary blend of carbon fiber, graphite and thermoplastic material was developed. This material has excellent strength, thermal and chemical resistant properties and is self lubricating. The ORM has moved the typical bushing design which has traditionally, worn out easily, experienced increased leakage and wear on sleeves or shafts to a truly superior bearing design.
For more information visit our website




No comments:
Post a Comment